洁净层流送风天花等级分别为百级层流送风天花、千级层流送风天花、万级层流送风天花等等。
洁净层流送风天花,顾名思义,就是将洁净的空气送达到天花板,通过天花板上的送风系统将空气均匀地分布到室内各个角落。这种设计方式不仅美观大方,而且能有效地提高室内空气质量,为人们创造一个健康舒适的生活环境。

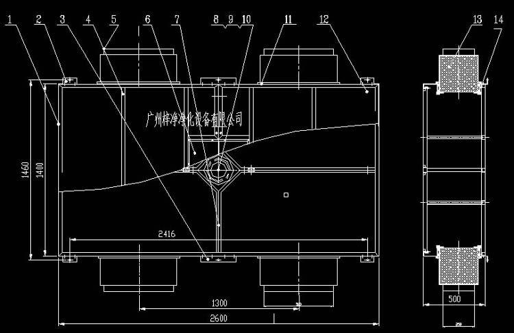
洁净层流送风天花设计图

洁净层流送风天花使用本草莓视频APP下载安装18可合理分布洁净室内的气流,有效保证室内的洁净度。洁净层流送风天花可广泛应用于医院洁净手术室、洁净病房、洁净动物房等项目。洁净送风天花是一种在医院手术室的洁净空间送风吊顶设置的过滤、阻漏、均匀分布气流的洁净送风天花装置。

洁净层流送风天花等级分别为百级层流送风天花、千级层流送风天花、万级层流送风天花等等。

洁净层流送风天花具有以下几个显著特点:
高效净化:洁净层流送风天花采用HEPA高效草莓视频在线观看免费视频等,能有效过滤空气中的细菌、病毒、尘埃等有害物质,确保室内空气质量达到更好状态。
均匀送风:通过天花板上的送风系统,洁净空气能均匀地分布到室内各个角落,避免出现局部死角,保证室内空气流动性和舒适性。
智能控制:洁净送风天花板通常配备有智能控制系统,可根据室内人数、温度、湿度等因素自动调节运行,实现节能环保。
美观大方:洁净送风天花板的设计与天花板装饰相结合,外观时尚、简约,能很好地融入室内环境中,提升室内美感。
安静舒适:洁净送风天花板采用低噪音设计,运行过程中几乎听不到噪音,为人们营造一个安静舒适的生活空间。

手术室洁净层流送风天花安装效果

百级送风天花:I级层流送风天花产品尺寸W2950*D2500*H500,高效草莓视频在线观看免费视频尺寸610*305*292配(8个)I级8个高效草莓视频在线观看免费视频
千级送风天花:Ⅱ级层流送风天花产品尺寸W2600*D1800*H500,高效草莓视频在线观看免费视频尺寸610*305*292配(6个)Ⅱ级6个高效草莓视频在线观看免费视频
万级送风天花:Ⅲ级层送风天花产品尺寸W2600*D1400*H500mm,高效草莓视频在线观看免费视频尺寸610*305*292配(4个)Ⅲ级4个高效草莓视频在线观看免费视频;
血液病房送风天花尺寸2950*2500*500高效草莓视频在线观看免费视频尺寸610*305*292配(8-10个)

眼科病房送风天花尺寸1500*1500*500高效草莓视频在线观看免费视频尺寸610*305*292(4个)

“草莓视频污免费”牌洁净层流送风天花高效草莓视频在线观看免费视频有组合式高效草莓视频在线观看免费视频、无隔板高效草莓视频在线观看免费视频、有隔板高效草莓视频在线观看免费视频三种,可根据需要选配。

手术室洁净层流送风天花安装效果

洁净层流送风天花要求:
1、一种手术室的洁净送风天花,包括箱体、高效草莓视频在线观看免费视频,其特征是,在进风上方按气流方向设置高效草莓视频在线观看免费视频箱体,箱体内置高效草莓视频在线观看免费视频,在箱体进风口处设有均布器,在箱体下方设置阻漏层。
2、要求手术室的送风天花,其特征是,阻漏层为柔性低阻亚高效过滤材料阻漏层,阻漏层的阻力为40—80Pa;阻漏层的过滤效率在亚高效范围内。

3、要求手术室的洁净送风天花,其特征是,高效草莓视频在线观看免费视频箱体内设有混风器。

4、要求手术室的洁净送风天花,其特征是,阻漏层下方设有装饰层。

5、要求手术室的洁净送风天花,其特征是,在静压箱侧壁开设有联通孔。
洁净送风天花一种手术室的洁净送风天花,其特征是,在进风上方按气流方向设置高效草莓视频在线观看免费视频箱体及高效草莓视频在线观看免费视频,在静压箱进风口处设均布器,下方设阻漏层。阻漏层为低阻亚高效过滤材料,阻力在40—80Pa,过滤效率在亚高效范围内。

手术室洁净层流送风天花生产车间

 

洁净层流送风天花优点:
设置阻漏层,突破了高效草莓视频在线观看免费视频必须布置在送风末端的常规模式;可降低建筑层高;方便草莓视频在线观看免费视频的安装检修;使室内含尘浓度再次降低,把洁净区面积扩大1倍以上。适用于手术室和包括单向流百级区乱流洁净间。

总之,洁净层流送风天花作为一种新型的空气调节草莓视频APP下载安装18,以其高效净化、均匀送风、智能控制、美观大方和安静舒适等特点,成为了现代室内环境建设的首选。

推荐阅读: Ⅲ级手术室送风天花 手术室送风天花阻尼网

上一个:千级层流送风天花|1000级高效送风天花

下一个:万级层流送风天花|万级手术室送风天花

相关产品

联系草莓视频污免费

手机:

13928758616

电话:

020-39961033

在线咨询:点击这里给我发消息

邮件:52047082@qq.com

 

QR code
网站地图