手术室送风天花阻尼网|网孔板|均流网
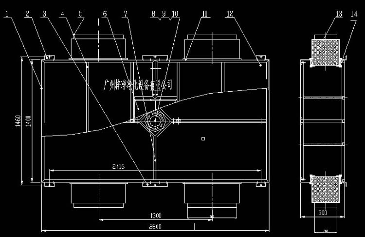
手术室送风天花阻尼网又称为手术室送风天花网孔板、手术室送风天花均流网、均流膜,主要分为四个部分组成:铝合金框架包边、300目双层阻尼网、不锈钢骨架、卡簧(均流网非广州草莓视频污免费产品,更换时需要测量卡簧中心距、铝合金外框需要测量边长的端点到斜角位置距离)。此产品不做过多介绍,直接上图。




手术室送风天花制作要求选配:
1、A型箱体为冷轧钢板静电喷塑处理,冷轧钢板静电喷塑做围护及进风过滤框,含双层DPP均流网及中速气流补偿装置。
2、B型外箱体采用SUS304不锈钢制作。抗腐蚀、耐酸碱、视觉更美观、强度高,同时,保留双层DPP均流网及中速气流补偿装置。
3、手术室送风天花阻尼层均流可选用铝质网孔板、304不锈钢网孔板、冷轧钢板烤漆网孔板、双层DPP均流网。

手术室送风天花特点:
1、送风形式:层流送风天花分高效草莓视频在线观看免费视频满布(平铺)送风和高效草莓视频在线观看免费视频侧布(侧铺)送风两种。
2、气流状态:送风天花下部气流均匀,气流满布率≧95%,达到行业检测的相关参数要求。
3、均流模式:多块网孔板组合,出风均匀,静电粉末喷涂,和墙顶面同色,表面效果好。
4、工厂制造,现场采用标准连接件拼接组装,安装方便、简单,草莓视频APP下载安装18安装质量有保障。
5、维护操作:国标规格草莓视频在线观看免费视频,更换快捷、方便,易维护。
6、草莓视频在线观看免费视频压差密封技术:保证洁净区内无泄漏。
7、草莓视频在线观看免费视频满布技术:压差低,超长使用寿命。
8、稳定的产品质量,供货周期短。
8、高分子阻尼层送风网面:低阻力,风速均匀。
9、均流度满足最新规范要求:不均匀度小于15% 。
10、变级别手术室:扩大手术室使用范围,提高手术室使用率;同时运行中节约能源 。
11、灯柱盖板小于250mm×250mm——符合最新版规范要求。

更多相关产品介绍:手术室送风天花
手术室送风天花阻尼网可根据用户需求定制!
